| 価格 |
600万円 | 交通 | 花輪線 「東大館」駅 徒歩26分 いとく東店前下車 徒歩8分 |
|---|---|---|---|
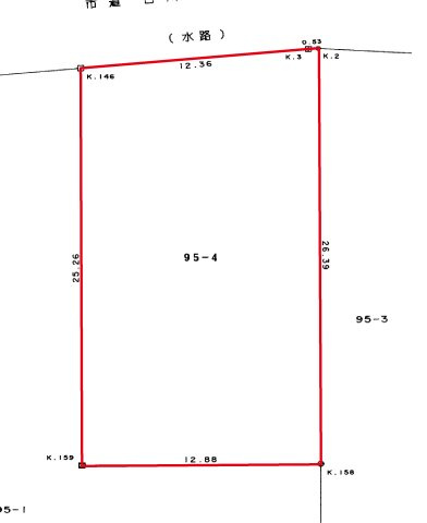
| 土地面積/坪数 | 332.12㎡ / 100.46坪 | 所在地 | 秋田県大館市字鉄砲場 95番4 |
| 建ぺい率 | 60% | 容積率 | 200% |
売地
| 価格 |
600万円 | 交通 | 花輪線 「東大館」駅 徒歩26分 いとく東店前下車 徒歩8分 |
|---|---|---|---|
| 土地面積/坪数 | 332.12㎡ / 100.46坪 | 所在地 | 秋田県大館市字鉄砲場 95番4 |
| 建ぺい率 | 60% | 容積率 | 200% |
「利回り」は、当該不動産の1年間の予定賃料収入の不動産取得対価に対する割合であり、公租公課その他当該物件を維持するために必要な費用の控除前のものです。
また、予定賃料収入が確実に得られる事を保証するものではありません。

平坦な土地なので、擁壁・造成費用を抑えられます。価格600万円の土地です。土地購入をお考えの方にイチオシの売地がこちらです。周辺環境が好条件でニーズの高い住宅用地です。不動産探しは後悔したくないですよね。地元密着の当社が、お客様のこだわりにとことんお応えします。ぜひお気軽にお問い合わせください。
※地図上の物件位置は近隣に物件が所在することを表すものであり、実際の物件所在地とは異なる場合がございます。
0186-59-4792
営業時間:【平日】9:00~18:00 【土日祝】要事前予約 / 定休日:不定休(お盆、年末年始、他)
| 所在地 | 秋田県大館市字鉄砲場 95番4 | ||
|---|---|---|---|
| 交通 | 花輪線 「東大館」駅 徒歩26分 いとく東店前下車 徒歩8分 | ||
| 価格 | 600万円 | 坪単価 | 5.97万円 |
| 土地面積 | 332.12㎡ | 建築条件 | |
| 土地権利 | 所有権 | 建ぺい率/容積率 | 60%/ 200% |
| 私道負担面積 | セットバック | ||
| 接道状況 | 一方 (北側 公道7.5m 間口12.3m) | ||
| 地目 | 宅地 | 地勢 | 平坦 |
| 土地の権利形態 | 開発面積 | ||
| 都市計画 | 非線引区域 | 用途地域 | 第一種中高層住居専用地域 |
| その他法令上の制限 | 建築基準法22条区域 | ||
| 国土法届出 | 不要 | 取引態様 | 一般媒介 |
| 現況 | 更地 | 引渡し | 即時 |
| 設備条件 |
公共下水 / 公営水道 / プロパンガス
水道引き込み無し(前面道路本管有り、取り出し可) 公共下水桝設置済み |
||
| その他条件 | 公簿売買(測量・境界確定は買主負担です) | ||
| 備考 | |||
| 周辺の学校 | 桂城小学校(約1,600m / 徒歩20分)、東中学校(約1,218m / 徒歩16分) | ||
| 物件番号 | 86918540 | ||
| 情報公開日 | 2025年11月8日 | 次回更新予定日 | 2025年11月22日 |
| 取引条件の有効期限 | 2025年11月22日 | ||
| 取扱い会社 |
株式会社みらいえ工房 〒017-0012 秋田県大館市釈迦内字稲荷山下291-1 秋田県知事(2)第2279号 公益社団法人 全日本不動産協会 公益社団法人 不動産保証協会 |
||
0186-59-4792
営業時間:【平日】9:00~18:00 【土日祝】要事前予約 / 定休日:不定休(お盆、年末年始、他)
| 所在地 | 物件の住所を表示。(詳細住所は表示していない場合もある) | ||
|---|---|---|---|
| 交通 | 物件(部屋)の沿線駅・バス停を表示。(複数駅・バス停の利用が可能な場合は最大3件まで) | ||
| 間取り/詳細 | 数字は居室数を表示。LDKはそれぞれ「リビング」「ダイニング」「キッチン」、S(納戸)とは「納戸」「サービスルーム」「マルチルーム」「フリールーム」など建築基準法第28条に適合していないため、居室と認められない納戸その他の部分を表す。 | ||
| 価格 | 販売されている住戸の価格を表示。仲介手数料は含まない。 | ||
| 管理費 | 共同住宅の設備その他共用部分の維持および管理をするために必要な費用を表示。 | ||
| 修繕積立金 | 共用部分の修繕のために積立てる金額を表示。 | ||

売地
| 価格 | 300 万円 | ||
|---|---|---|---|
| 土地面積 | 301.23㎡ | 建築条件 | 無 |
| 土地坪数 | 91.12坪 | 坪単価 | 3.29万円 |
| 建ぺい率 | 60% | 容積率 | 200% |
| 住所 | 秋田県大館市常盤木町69番地17,81番地7 | ||
| 交通 |
花輪線「東大館」駅 徒歩8分
|
||
売地
| 価格 | 580 万円 | ||
|---|---|---|---|
| 土地面積 | 317.00㎡ | 建築条件 | 無 |
| 土地坪数 | 95.89坪 | 坪単価 | 6.05万円 |
| 建ぺい率 | 60% | 容積率 | 200% |
| 住所 | 秋田県大館市釈迦内字街道上100番地2 | ||
| 交通 |
奥羽本線「大館」駅 徒歩14分
|
||
売地
| 価格 | 150 万円 | ||
|---|---|---|---|
| 土地面積 | 518.00㎡ | 建築条件 | |
| 土地坪数 | 156.69坪 | 坪単価 | 0.96万円 |
| 建ぺい率 | 60% | 容積率 | 200% |
| 住所 | 秋田県大館市東台4丁目33-3 | ||
| 交通 |
花輪線「東大館」駅 徒歩27分
|
||
売地
| 価格 | 200 万円 | ||
|---|---|---|---|
| 土地面積 | 451.09㎡ | 建築条件 | |
| 土地坪数 | 136.45坪 | 坪単価 | 1.47万円 |
| 建ぺい率 | 70% | 容積率 | 200% |
| 住所 | 秋田県大館市早口字大野5 | ||
| 交通 |
奥羽本線「早口」駅 徒歩149分
|
||
【外観】