中古一戸建住宅
| 価格 |
300万円 | 交通 | 花輪線 「東大館」駅 徒歩9分 南神明町下車 徒歩7分 |
|---|---|---|---|
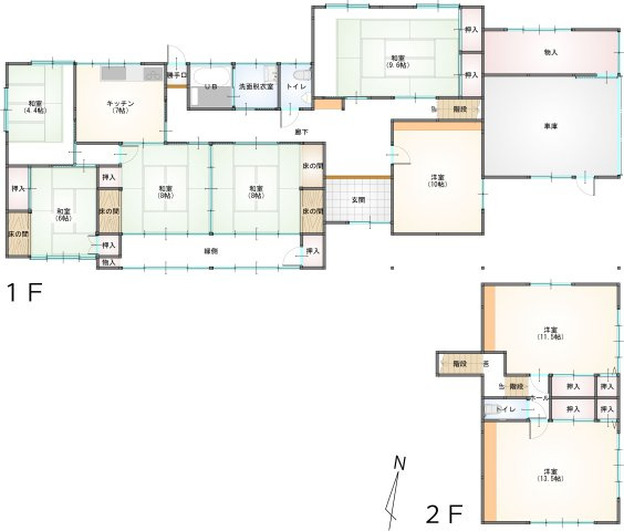
| 間取り | 8DK | 所在地 | 秋田県大館市中神明町 143番1 |
| 建物面積/坪数 | 244.08㎡ / 73.83坪 | 土地面積/坪数 | 719.51㎡ / 217.65坪 |
「利回り」は、当該不動産の1年間の予定賃料収入の不動産取得対価に対する割合であり、公租公課その他当該物件を維持するために必要な費用の控除前のものです。
また、予定賃料収入が確実に得られる事を保証するものではありません。

徒歩8分の距離に第一中学校があるのも魅力。南側道路に面した物件です。気になる素敵な8DKの物件となっており、内覧も大歓迎です。花輪線東大館周辺で新生活を迎えるなら、お先にみらいえ工房までご要望をお聞かせ下さい。ご連絡は、0186-59-4792からお願いします。
※地図上の物件位置は近隣に物件が所在することを表すものであり、実際の物件所在地とは異なる場合がございます。
0186-59-4792
営業時間:【平日】9:00~18:00 【土日祝】要事前予約 / 定休日:不定休(お盆、年末年始、他)
| 所在地 | 秋田県大館市中神明町 143番1 | ||
|---|---|---|---|
| 交通 | 花輪線 「東大館」駅 徒歩9分 南神明町下車 徒歩7分 | ||
| 価格 | 300万円 | ||
| 間取り |
8DK
|
||
| 築年月(築年数) | 1977年 4月(築48年) | 主要採光面 | 南 |
| 建物構造 | 木造 | 階数 | 2階建 |
| 私道負担面積 | セットバック | ||
| 接道状況 | 一方 (南側 公道5.8m) | ||
| 建ぺい率/容積率 | 60%/ 200% | 土地権利 | 所有権 |
| 地目 | 宅地 | 地勢 | 平坦 |
| 土地の権利形態 | |||
| 都市計画 | 非線引区域 | 用途地域 | 第一種中高層住居専用地域 |
| その他法令上の制限 | 建築基準法22条区域 | ||
| 国土法届出 | 不要 | 取引態様 | 一般媒介 |
| 現況 | 空家 | 引渡し | 即時 |
| リフォーム | |||
| 駐車場 | 空き台数:2台 、 有 | ||
| 設備条件 |
公共下水 / 公営水道 / 閑静な住宅地 / プロパンガス
/ ファミリー向け / フローリング / 照明器具付き / バス・トイレ別 / 温水洗浄便座 / 男女トイレ別 / トイレ2ヶ所 / 浴室1坪以上 / ユニットバス / 収納豊富 / 住戸内覧可能
水道引き込みΦ20(前面道路本管Φ75) 公共下水桝設置・接続済み |
||
| その他条件 | 公簿売買(測量・境界確定は買主負担です) | ||
| 備考 | |||
| 周辺の学校 | 城西小学校(約1,042m / 徒歩14分)、第一中学校(約574m / 徒歩8分) | ||
| 物件番号 | 98830577 | ||
| 情報公開日 | 2025年11月8日 | 次回更新予定日 | 2025年11月22日 |
| 取引条件の有効期限 | 2025年11月22日 | ||
| 取扱い会社 |
株式会社みらいえ工房 〒017-0012 秋田県大館市釈迦内字稲荷山下291-1 秋田県知事(2)第2279号 公益社団法人 全日本不動産協会 公益社団法人 不動産保証協会 |
||
0186-59-4792
営業時間:【平日】9:00~18:00 【土日祝】要事前予約 / 定休日:不定休(お盆、年末年始、他)
| 所在地 | 物件の住所を表示。(詳細住所は表示していない場合もある) | ||
|---|---|---|---|
| 交通 | 物件(部屋)の沿線駅・バス停を表示。(複数駅・バス停の利用が可能な場合は最大3件まで) | ||
| 間取り/詳細 | 数字は居室数を表示。LDKはそれぞれ「リビング」「ダイニング」「キッチン」、S(納戸)とは「納戸」「サービスルーム」「マルチルーム」「フリールーム」など建築基準法第28条に適合していないため、居室と認められない納戸その他の部分を表す。 | ||
| 価格 | 販売されている住戸の価格を表示。仲介手数料は含まない。 | ||
| 管理費 | 共同住宅の設備その他共用部分の維持および管理をするために必要な費用を表示。 | ||
| 修繕積立金 | 共用部分の修繕のために積立てる金額を表示。 | ||

中古一戸建住宅
| 価格 | 350 万円 | ||
|---|---|---|---|
| 間取り | 8DK | 築年月(築年数) | 1949年 1月 (築76年) |
| 建物面積 | 164.82㎡ | 土地面積 | 343.68㎡ |
| 住所 | 秋田県大館市字長倉17番10 | ||
| 交通 |
花輪線「東大館」駅 徒歩13分
|
||
【外観】