店舗事務所
| 賃料 |
9.5万円 | 交通 | 奥羽本線 「大館」駅 徒歩28分 長倉町下車 徒歩4分 |
|---|---|---|---|
| 間取り | 2R | 所在地 | 秋田県大館市字三ノ丸 13-10 |
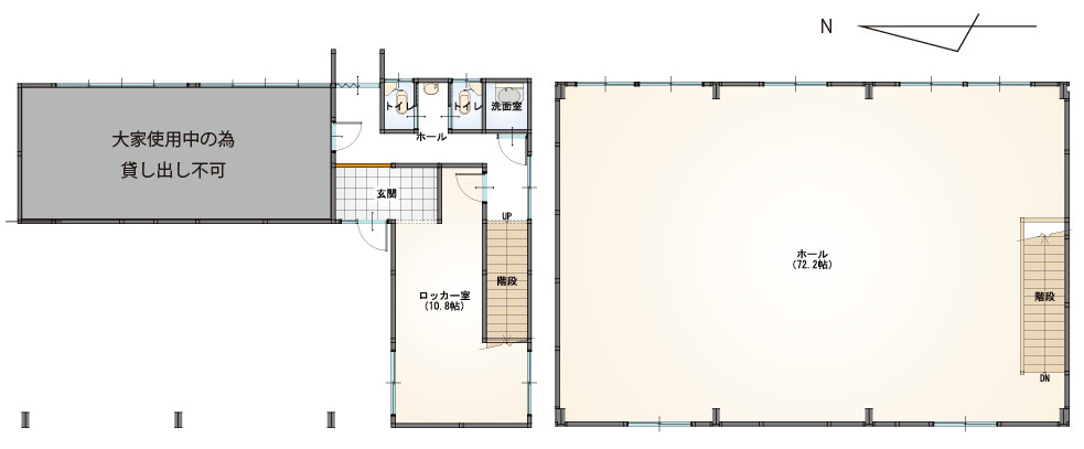
| 専有面積 | 144.08㎡ | 築年月(築年数) | 1965年 6月 (築60年) |
「利回り」は、当該不動産の1年間の予定賃料収入の不動産取得対価に対する割合であり、公租公課その他当該物件を維持するために必要な費用の控除前のものです。
また、予定賃料収入が確実に得られる事を保証するものではありません。

車にいたずらされにくい、敷地内駐車場の空きがあります。駐車スペースは十分に確保されています。賃料10万円以下をご希望のお客様、ぜひお問い合わせください。2ヶ所にトイレがあります。需要性の高い、礼金不要の快適空間をご提供いたします。敷金2ヶ月、敷金は退去時のことを考えても払っておいたほうがいいですよ。礼金がゼロ円なので、初期費用節約につながります。
※地図上の物件位置は近隣に物件が所在することを表すものであり、実際の物件所在地とは異なる場合がございます。
0186-59-4792
営業時間:【平日】9:00~18:00 【土日祝】要事前予約 / 定休日:不定休(お盆、年末年始、他)
| 所在地 | 秋田県大館市字三ノ丸 13-10 | ||
|---|---|---|---|
| 交通 | 奥羽本線 「大館」駅 徒歩28分 長倉町下車 徒歩4分 | ||
| 賃料 | 9.5万円 | 坪単価 | 0.22万円 |
| 管理費 | |||
| 敷金/保証金/礼金 | 2ヶ月 / 1ヶ月 / 0ヶ月 | 敷引/償却 | - / - |
| 雑費 | 権利金 | ||
| 所在階/階数 | 1-2階 / 2階建 | 建物構造 | その他 |
| 専有面積 | 144.08㎡ | 土地面積 | |
| 築年月(築年数) | 1965年 6月(築60年) | 現況 | 空家 |
| 入居可能日 | 即時 | 契約期間 | 2年 |
| 更新料 | 更新事務手数料 | ||
| 用途地域 | 第一種住居地域 | ||
| 保険 | 保険加入義務:有 | ||
| 保証会社 | 保証加入義務:必加入、保証会社名:アーク賃貸保証 | ||
| 駐車場 | 空き台数:2台 、 空有 | ||
| 設備条件 | 公共下水 / 公営水道 / プロパンガス / 楽器相談 / 事務所可 / 電気有 / トイレ2ヶ所 / トイレ共同 / 独立洗面台 / エアコン | ||
| その他条件 | |||
| 備考 | |||
| 物件番号 | 69953011 | 取引態様 | 一般媒介 |
| 情報公開日 | 2025年11月6日 | 次回更新予定日 | 2025年11月20日 |
| 取引条件の有効期限 | 2025年11月20日 | ||
| 取扱い会社 |
株式会社みらいえ工房 〒017-0012 秋田県大館市釈迦内字稲荷山下291-1 秋田県知事(2)第2279号 公益社団法人 全日本不動産協会 公益社団法人 不動産保証協会 |
||
0186-59-4792
営業時間:【平日】9:00~18:00 【土日祝】要事前予約 / 定休日:不定休(お盆、年末年始、他)
| 所在地 | 物件の住所を表示。(詳細住所は表示していない場合もある) | ||
|---|---|---|---|
| 交通 | 物件(部屋)の沿線駅・バス停を表示。(複数駅・バス停の利用が可能な場合は最大3件まで) | ||
| 間取り/詳細 | 数字は居室数を表示。LDKはそれぞれ「リビング」「ダイニング」「キッチン」、S(納戸)とは「納戸」「サービスルーム」「マルチルーム」「フリールーム」など建築基準法第28条に適合していないため、居室と認められない納戸その他の部分を表す。 | ||
| 価格 | 販売されている住戸の価格を表示。仲介手数料は含まない。 | ||
| 管理費 | 共同住宅の設備その他共用部分の維持および管理をするために必要な費用を表示。 | ||
| 修繕積立金 | 共用部分の修繕のために積立てる金額を表示。 | ||

【外観】